上海办公室装修公司

切换到新站
 
 
  • 经典案例Case Study
办公室装修案例Office decoration 厂房装修案例Factory decoration 室内设计案例Interior design 机电安装工程案例Mechatronic installation project 综合布线工程案例Integrated wiring project 暖通空调工程案例HVAC engineering 钢结构工程案例Steel structure engineering 净化车间工程案例Purification plant engineering 办公家具展示Office furniture exhibition 部分客户一览Partial client list
最新工程案例The latest project
施工现场Construction site
 
朗艺首页 最新案例 办公室装修案例

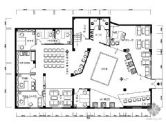
办公室装修案例

项目名称:办公室装修工程

项目地址:上海

装修面积:2200平

案例说明:本案在设计中因为空间较宽敞,加之卫生间门的开向正对室内,特设计了展示性隔断柜,加强其办公、会客及生活的区域性,既做到了空间上的划分,又可通过展示柜内的摆设辅助室内布置呈现事业风貌及个人雅兴,体现其稳重而时尚的人性化的特点。 

办公室装修案例,上海办公室装修公司
上一案例  下一案例  返回列表
在线咨询
免费量房
免费设计
索要报价
扫一扫

扫一扫

预约有惊喜
签约送大礼

返回顶部